DE, Ingolstadt, Knörstraße 2b
Eintreten – durchatmen – zuhause fühlen
Doppelhaushälfte mit Garten und Garage
Sie suchen?
• Eine gepflegte Doppelhaushälfte in ruhiger Lage
• ein rasch beziehbares Objekt
• in einer familiengerechten Umgebung
• mit einem akzeptablen Einstiegspreis und solider Ausstattung.
All dies finden Sie:
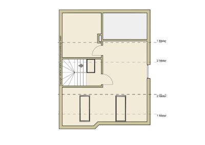
• ca. 137,38 m² Wohnfläche mit 4 bis 5 gemütlichen Räumen,
• eine sonnige Terrasse und einen gut nutzbaren Balkon nach Südwest,
• ein 1990 erstelltes, in gutem Pflegezustand gehaltenes Anwesen,
• ein sehr gepflegtes Anwesen mit liebevoller Detailausstattung,
• an unzähligen Stellen hochwertig renovierten Bestzustand
• einen reizvollen, weitläufigen Blick auf Gärten und alten Baumbestand,
• eine charmante Familiengegend mit perfekter Infrastruktur,
• ein rund 421 m² großes Grundstück in ruhiger, stadtnaher Lage,
• vernünftig geschnittene Räume mit ausreichenden Stellflächen,
• eine perfekte Ausrichtung: Wohnräume zur Gartenseite nach Südwesten,
• ein sehr helles, neu gestaltetes Badezimmer mit Wanne und Dusche,
• ein zusätzliches separates WC im Erdgeschoßbereich,
• eine gemütliche Wohnraumaufteilung mit offener Küchengestaltung,
• eine neue, sehr funktionale, gefällige und zeitlose Einbauküche
• an der Küche liegenden Platz mit Kamin für einen behaglichen Essbereich,
• eine behagliche Atmosphäre durch Fliesen,- und massive Holzbeläge,
• eine gute Belichtung durch große Fensterelemente in den Wohnräumen,
• ein gemütliches, geräumiges Schlafzimmer mit viel Platz und Licht,
• ein heimeliges Kinderzimmer mit Zugang zum Sonnenbalkon,
• zu einem marktgerechten Kaufpreis von 795.000 -€,
• sorgenfreies Parken: eine Einzelgarage ist im Kaufpreis bereits enthalten
• und für Ihre Kosten perfekt: Sie bezahlen keine Käuferprovision!
Deshalb:
• Besichtigen Sie mit uns vor Ort dieses interessante Anwesen,
• lassen Sie sich begeistern und
• freuen Sie sich auf einen Einzug bereits im Sommer / Herbst 2026.
Das Anwesen
Galerie und Grundrisse
Lage
Das ca. 421 m² große Grundstück liegt inmitten einer ruhigen und sehr gefragten Wohngegend südlich der Ingolstädter Altstadt, in der Nähe von Kindergärten, Schulen und vielen Sportplätzen und auch gut anfahrbar, in Nähe des Hauptbahnhofes.
Den perfekten Rahmen bildet das viele Grün der umliegenden Grundstücke, hübsch gestaltete, großzügige Grünflächen in der unmittelbaren Nachbarschaft und die gut erreichbare, zuerst „städtische Flusslandschaft“ mit seinen historischen Gebäuden und Brücken und die dann „vor den Toren der Stadt“ weitläufigen Donauufer- und Auen mit all ihren Freizeitmöglichkeiten. Das Freizeitangebot erscheint fast unbegrenzt. Egal ob Sie Fahrradtouren, Wanderungen oder aber Ausflüge zu Sehenswürdigkeiten unternehmen wollen. Auch viele Wasserflächen oder Golfplätze bieten Abwechslung.
Die Donauauen nehmen einen hohen Stellenwert in der Freizeitgestaltung ein.Diese erreichen Sie rasch mit dem Fahrrad oder in einem kleinen Spaziergang auch zu Fuß, oder natürlich bequem mit dem Auto.
Hier bieten sich dann vielfältige Möglichkeiten an, wie zum Beispiel Wassersport oder Sie nutzen einfach die geruhsame Wander-, Spazier-, Rad- oder Joggingwege. Hier finden Sie viele Oasen der Ruhe und Erholung. Und. Das ganze Jahr über könne Sie so die verschiedensten Jahreszeiten mit all ihren Besonderheiten genießen.
Das Fahrrad gilt in dieser Gegend als ein besonders beliebtes Fortbewegungsmittel für Jung und Alt, da man bequem auf ausgedehnten Fahrradwegenetzen alle Dinge des täglichen Lebens erledigen kann. Bei Bedarf bringt Sie der Bus in die Ingolstädter City, welche Sie auch mit dem Fahrrad (als kleine Wanderung auch zu Fuß über die Staustufe) rasch und bequem erreichen.
Weitere interessante Objekte

Norbert Gruber
Geschäftsführender
Inhaber und Gründer
Leiter des Standortes München
Wohnimmobilien
Gewerbeimmobilien
Investment




