Familiendomizil
Ein Einfamilienhaus mit einer Wohnfläche von über 200m² auf insgesamt zwei, mit viel Geschick, dem modernen Zeitgeist entsprechend gestalteten Wohnebenen.
DE, München, Trainsjochstraße 6
Unser Bauvorhaben
Der Bauherrin, Massiv Hausbau München ist es gelungen, in gewachsener, grüner und doch zentraler, östlicher Stadtlage ein Gebäude zu schaffen, welches eine prägnante, ins Auge stechende und für die Wohngegend exponierte, kubistisch geprägte Fassade im klaren Bauhausstil bietet.
Zudem wurden mit sehr viel Sinn für Detailplanungen ein Grundriss (und damit sehr extravagante Lebensräume) geschaffen, welche durch elitäre Nutzbarkeit, nicht alltägliche Helligkeit und ein ungewöhnliches Wohnkonzept Gefallen finden werden.
Familiendomizil
Es entsteht ein Einfamilienhaus mit einer Wohnfläche von über 200m², mit einer Einzelgarage, auf insgesamt zwei, mit viel Geschick, dem modernen Zeitgeist entsprechend gestalteten Wohnebenen.
Ausstattung
Auffallend ist dabei die schlanke Silhouette des Gebäudes, welche das Anwesen mit dem Grundstück fast verschmelzen lässt
Besonders sind nicht nur die sehr weitläufigen, offen gehaltenen Räume mit großen Fensterelementen für viel Licht, Transparenz und exklusiver Ausstrahlung im Erdgeschoß, sondern auch die raffiniert gestaltete Privatebene im Obergeschoss mit seinen, gehobenen Ansprüchen gerecht werdenden, Schlafräumen und Privatbädern und der großen Dachterrasse.
Zu Teilen sind die Fenster als Schiebefenster ausgeführt und lassen die Flächen im Wohn,- und Küchenbereich als einen nicht alltäglichen Raum für einzigartige Stunden – allein mit der Familie oder mit Ihren Gästen, werden.
So werden Garten, Freiflächen und der Outdoor-Bereich harmonisch in das Wohnerlebnis integriert.
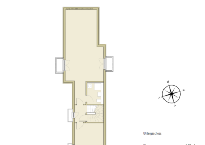
Auch das Souterraingeschoss bietet ausgesprochen viele Möglichkeiten, insbesondere durch den Lichthof. Dieser bringt besonders viel Licht und einen Austritt ins Freie.
Überaus vorteilhaft, wenn Sie den Hobbyraum zu Arbeitszwecken, für Sportaktivitäten oder als großzügigen Sauna und Wellnessbereich nutzen
Lage
Das Gebäude mit einer Wohnfläche von rund 210 m², auf einem rund 420 m² großen Grundstück an der Ostseite der Landeshauptstadt München befindlich, ist nicht nur in einer traditionell – gewachsenen Wohngegend gelegen, sondern wird durch die Ausrichtung nach Ost, Süd und West auch optimal belichtet.
Somit wird das Gebäude von morgens bis abends bei sonnigem Wetter gut beschienen.
Fakten im Überblick
Familiendomizil
Intensive, persönliche Beratung bei der Entscheidung
hochwertige Bauweise
viele technische Finessen
Außenwände aus Wärmedämmziegel
Großflächige Fensterelemente, zum Teil als Schiebefenster
Parkettböden als Landhausdiele oder Fischgrat in allen Räumen
trendige Wand- und Bodenfliesen im Format 80 x 80 cm
kontrollierte Wohnraumbelüftung der Räume
Steuerung von Heizung, Rollläden und Beleuchtungen über Softsmartsystem
in den Bereichen Wohnen/Kochen/Essen Beschattung über Alu-Raffstores
Bäder mit markanten Ausstattungsmerkmalen
Behagliche Fußbodenheizung in allen Räumen
Reichhaltige Elektroausstattung
Kostensparende Wärmepumpe
Zugesicherter KFW 55
Optional: Photovoltaikanlage
Lage
Trainsjochstraße
Die Anliegerstraße Trainsjochstraße, als Seitenstraße der Sankt-Veit-Straße, ist eine kleine, ruhige Anliegerstraße. Gegend bestimmend sind in Berg am Laim die vielen und weitläufigen Freiflächen (insbesondere der Ostpark mit See und wunderbarem Biergarten) und der grüne, eingewachsene Stadtteilcharakter des Wohnviertels.
Das direkte Wohnumfeld besteht in einer interessanten Mischung aus teils älteren und mondänen, aber auch unzähligen modernen Wohnensembles und aus manchmal imponierenden Einzelhäusern besonderer Architektur.
Einkaufsmöglichkeiten
So findet man hier im Viertel eigentlich alles, was das Herz, und auch der tägliche Haushaltsbedarf, benötigt. Meist kann man die gewünschten Einrichtungen und angestrebten Ziele zu Fuß oder mit dem Auto oder auch Fahrrad erreichen. Sollten Sie Spezielles oder Anderes suchen, so werden Sie sicherlich z.B. auf der Kreillerstraße oder aber im PEP, dem modernen, soeben aufgefrischtem, Einkaufszentrum, nur wenige Autominuten entfernt, fündig. Alle nur erdenklichen Geschäfte, Versorger, Läden zum Bummeln und Flanieren, Ausstatter für Haus und Garten, im Bedarfsfalle unzählige Ärzte und insbesondere Lokale, Gaststätten und Cafés verschiedenster Couleur sind hier gut anfahrbar vor Ort.
Freizeitgestaltung
Für Ihre individuelle Freizeitgestaltung ist im Stadtteil Berg am Laim natürlich ebenfalls bestens gesorgt. Sollten Sie gerne mit dem Fahrrad unterwegs sein, so ist dessen Stellenwert sehr ausgeprägt. Vieles kann mit dem Rad rasch angefahren werden.
Um in den Truderinger Forst mit seinen verschlungenen Waldwegen zu gelangen, oder den Ostpark mit seinen vielen Wegen und Grünflächen zu besuchen oder das Umland zu Touren nutzen zu wollen, finden Sie ein sehr gut ausgebauten Radwegnetze im direkten Umland.
Im Überfluss sind Möglichkeiten für Wassersport (z.B. das Michaelibad), Tennis-, Golfplätze oder aber geruhsame Wander-, Spazierwege vorhanden.
Oasen der Ruhe und Erholung gibt es hier in Hülle und Fülle.
Anbindung
Mit dem Auto sind es ebenfalls nur einige Minuten zum Autobahnzubringer in Richtung Norden und Süden, wenn Sie das weiterentfernte Umland erkunden und nutzen wollen. Die Innenstadt von München ist in 20 Minuten anfahrbar.
U-Bahnstationen finden Sie in der Kreillerstraße oder am Michaelibad.
Galerie
Visualisierungen Ansichten und Innenraum
Grundrisse
Alle Ebenen und der Außengrundriss
Bautenstand
März 2026
Ihr Kontakt

Norbert Gruber
Geschäftsführung

Florian Gruber
Der Kaufpreis:
1.890.000, -€ inkl. Einzelgarage und ohne Käuferprovision
Alle Angaben beruhen auf Aussagen und Unterlagen, welche durch die Verkäuferseite getätigt bzw. an uns weitergegeben wurden. Diese sind sorgfältig geprüft. Dennoch können wir für deren Richtigkeit keine Gewähr übernehmen.
Die Bezugsfertigkeit wird für Ende 2026 zugesichert
Wie geht es weiter?
Ihre neue Immobilie?
Das „Familiendomizil“ in der Trainsjochstraße